


Listing Courtesy of:
MLS Of Southern Arizona / Coldwell Banker Realty / Samantha Frederick / Margaret "Peggy" Mackey-Craig
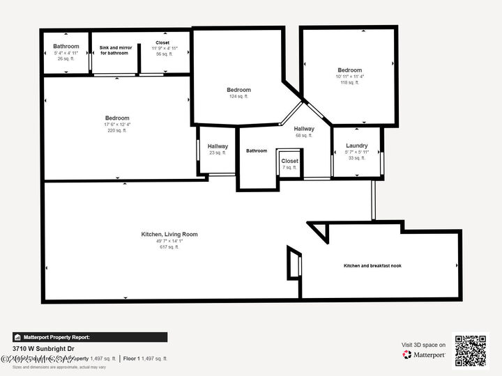
MLS Of Southern Arizona / Coldwell Banker Realty / Samantha Frederick / Margaret "Peggy" Mackey-Craig 3710 W Sunbright Drive Tucson, AZ 85742
Active (136 Days)
$344,500 (USD)
MLS #:
22516759
22516759
Lot Size
7,405 SQFT
7,405 SQFT
Type
Single-Family Home
Single-Family Home
Year Built
1996
1996
Style
Southwestern
Southwestern
Views
Mountains
Mountains
School District
Marana
Marana
County
Pima County
Pima County
Listed By
Samantha Frederick, Coldwell Banker Realty
Margaret "Peggy" Mackey-Craig, Coldwell Banker Realty
Margaret "Peggy" Mackey-Craig, Coldwell Banker Realty
Source
MLS Of Southern Arizona
Last checked Nov 10 2025 at 8:22 AM GMT+0000
MLS Of Southern Arizona
Last checked Nov 10 2025 at 8:22 AM GMT+0000
Bathroom Details
- Full Bathrooms: 2
Interior Features
- Guest Facilities : None
- Window Coverings : Stay
- Additional Rooms : None
- Breakfast Area : Living Areas : Great Room
- Laundry Room : Dryer
- Laundry Room
Subdivision
- Sunnyvale(1-145)
Heating and Cooling
- Forced Air
- Central Air
Flooring
- Carpet
- Ceramic Tile
- Laminate
Exterior Features
- Frame - Stucco
- Roof: Shingle
Utility Information
- Utilities: Connected
- Sewer: Connected, Public
School Information
- Elementary School: Quail Run
- Middle School: Tortolita
- High School: Mountain View
Parking
- 0.00
Listing Price History
Date
Event
Price
% Change
$ (+/-)
Jul 23, 2025
Price Changed
$344,500
-1%
-5,000
Jun 20, 2025
Original Price
$349,500
-
-
Location
Estimated Monthly Mortgage Payment
*Based on Fixed Interest Rate withe a 30 year term, principal and interest only
Listing price
Down payment
%
Interest rate
%Mortgage calculator estimates are provided by Coldwell Banker Real Estate LLC and are intended for information use only. Your payments may be higher or lower and all loans are subject to credit approval.
Disclaimer: The data relating to real estate listings on this website comes in part from the Internet Data Exchange (IDX) program of Multiple Listing Service of Southern Arizona. IDX information is provided exclusively for consumers personal, non-commercial use and may not be used for any purpose other than to identify prospective properties consumers may be interested in purchasing. Listings provided by brokerages other than Brokerage are identified with the MLSSAZ IDX Logo. All Information Is Deemed Reliable But Is Not Guaranteed Accurate. Listing information Copyright 2025 MLS of Southern Arizona. All Rights Reserved.
Description